5233VH, 's-Hertogenbosch
133m² - 5 kamers - Rijwoning
Ruime gezinswoning (type drive-in) met drie slaapkamers, een inpandige garage en diepe voor- en achtertuin. Deze tussenwoning is gelegen in de woonwijk De Slagen. Op korte afstand van de woning liggen diverse basisscholen en kinderdagverblijven en in het nabij gelegen winkelcentrum De Rompertpassage kan je terecht voor alle dagelijkse boodschappen. De gezellige binnenstad van ’s-Hertogenbosch is in 15 minuten per fiets te bereiken. Ook sportfaciliteiten, een gezondheidscentrum en een apotheek zijn binnen handbereik.
Inhoud ca. 530 m3, woonopp ca 133 m2, perceelopp ca. 119 m2 , bouwjaar 1970.
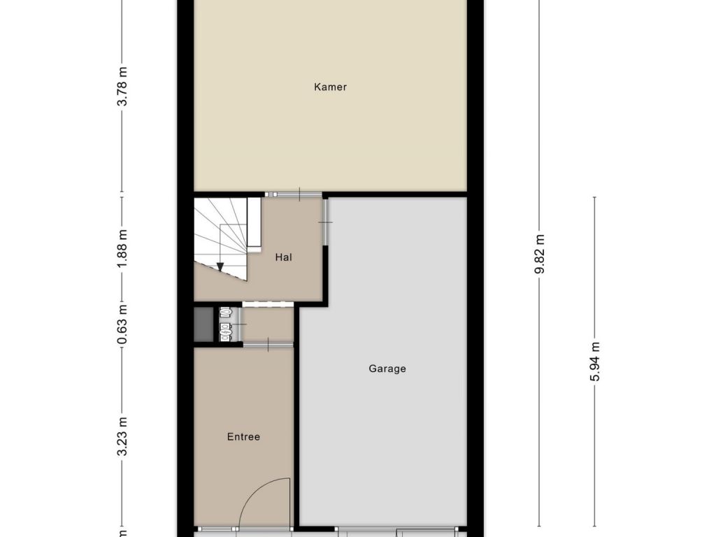
Begane grond:
De hal bij binnenkomst heeft een inpandige doorgang naar de ruime garage. Aan de tuinzijde bevindt zich een royale ruimte die bijvoorbeeld kan dienen als kantoor, slaapkamer, TV-kamer of bijvoorbeeld chillruimte. Een openslaande deur leidt vanuit hier naar de zonnige tuin op het zuidoosten.
1e verdieping:
Via de vaste trap bereik je het lichte woongedeelte. De woonkamer beschikt over een ruim zitgedeelte aan de achterzijde van de woning en middels openslaande deuren is er toegang tot het balkon (eveneens op het zuidoosten). De open keuken bevindt zich aan de voorzijde en is voorzien van een eenvoudig wandmeubel. Via de overloop is er toegang tot het separate toilet en de trap naar de tweede verdieping.
2e verdieping:
De overloop geeft toegang tot de drie slaapkamers, de badkamer en een bergruimte met de standplaats van de CV-ketel. De badkamer beschikt over een inloopdouche, toilet en een wastafel.
Deze tussenwoning is geheel voorzien van dubbele beglazing. Centraal gesitueerd in `s-Hertogenbosch in een kindvriendelijke woonomgeving en met alle dagelijkse voorzieningen binnen handbereik. De binnenzijde van de woning is echter gedateerd. Kopers dienen derhalve rekening te houden met moderniseringskosten.
De onderstaande voorwaarden zijn van toepassing:
1. U was zelf aanwezig tijdens de bezichtiging en doet zelf in eigen persoon een bieding (wij accepteren dus geen bieding namens andere (niet) natuurlijke personen).
2. U gaat zelf in de woning wonen.
3. U mag de koopwoning de eerste 12 maanden niet verkopen aan een derde partij (boete € 50.000,-)
4. De notariskeuze is voorbehouden aan verkoper: Huijbregts Notarissen te ’s-Hertogenbosch
5. Vrijwaring door koper(s) van verkoper van gebreken (zichtbaar en onzichtbaar) van de door een voormalig bewoner aangebrachte zaken.
6. Voorbehoud toestemming verkoop door bestuur stichting Zayaz.
7. Mogelijk asbesthoudende materialen in en aan de woning.
8. U bent bekend met het vestigen van bestaande en nieuw erfdienstbaarheden/bedingen/verplichtingen zoals gedogen bomen, parkeerplaats, brandgang, centraal antenne systeem, wijkverwarming, scheidingsmuren,
burenrecht en kabels en leidingen.
Woonoppervlakte | 133m² |
Aantal kamers | 5 |
Heeft u interesse in deze woning, wilt u de woning bezichtigen of heeft u een vraag? Vul dan onderstaand formulier in. We nemen zo spoedig mogelijk contact op.
Deze website maakt gebruik van cookies om de website te verbeteren: om anonieme statistieken bij te houden, het mogelijk te maken om pagina's te delen middels social media (Facebook, Twitter, etc.) en om advertenties voor u relevanter te maken. Mocht u geen cookies accepteren, kunt u op instellingen klikken om deze optie te kiezen. Als u gebruik wilt maken van alle functionaliteiten op deze website, klik dan op Accepteren.
Op deze website worden cookies gebruikt. Een cookie is een klein tekstbestand dat op uw pc wordt opgeslagen. Dit bestand houdt gegevens bij van door u bezochte pagina's en bevat een aantal gegevens over uw bezoek. Tevens worden cookies gebruikt voor functionaliteiten op onze website, zoals de mogelijkheid om pagina's te delen binnen social media (Google+, Facebook, Twitter, etc.). De cookies worden lokaal op uw eigen pc opgeslagen en bevatten alleen geanonimiseerde informatie. Met behulp van de onderstaande instellingen kunt u een keuze maken uit de cookies die u wilt accepteren. Het niet accepteren van cookies zal resulteren in een beperkte functionaliteit binnen de website.