TE KOOP | TE HUUR

 

DIT IS DE PLEK WAAROP ZAYAZ VRIJE SECTOR HUURWONINGEN, KOOPWONINGEN, PARKEERPLAATSEN (koop) EN BEDRIJFSRUIMTE AANBIEDT!

68ace77017461.jpg

Kamerlingh Onnesstraat 8

5223ET, 's-Hertogenbosch

113m² - 4 kamers - Rijwoning

€490.000,- k.k

Woningomschrijving

Ruime stadswoning met balkon op het zuiden, een inpandige berging en een privé-parkeerplaats voor de deur. Ideaal gelegen op loopafstand van het Centraal Station en de historische binnenstad van ’s-Hertogenbosch. De woning ligt op een rustige en centrale plek van Den Bosch.

Inhoud ca. 399 m3, woonopp. ca. 113 m2, perceelopp. ca. 80 m2, bouwjaar 2011

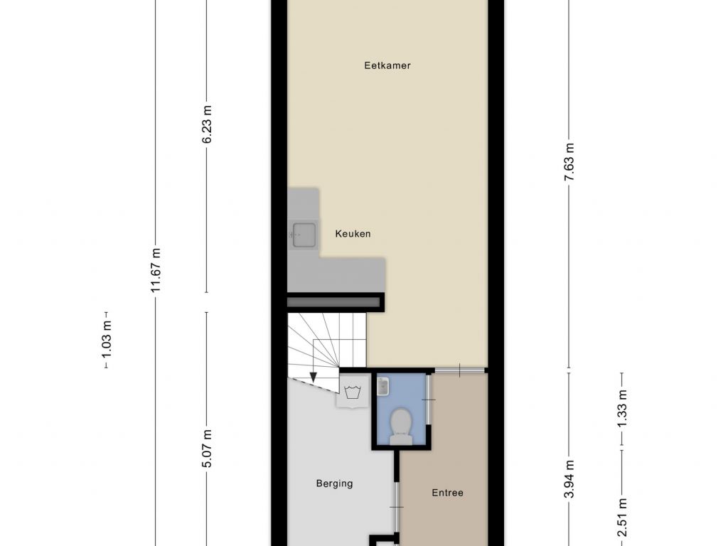
Begane grond:
Vanuit de hal/entree is er toegang tot het toilet met fonteintje, meterkast, de inpandige berging (welke ook vanuit buiten bereikbaar is). In de berging bevindt zich de aansluiting voor de wasapparatuur. Vanuit de hal is er tevens toegang tot de royale eet-/woonkamer met hoge raampartijen van vloer tot plafond. De open keuken is voorzien van een eenvoudig keukenmeubel in hoek-opstelling.

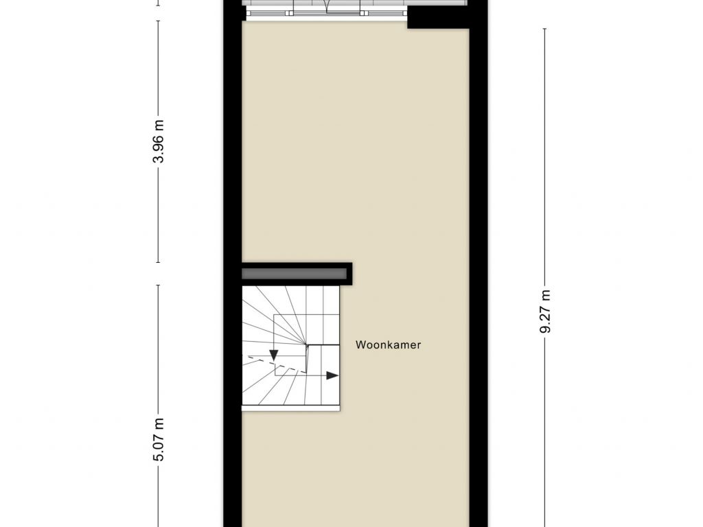
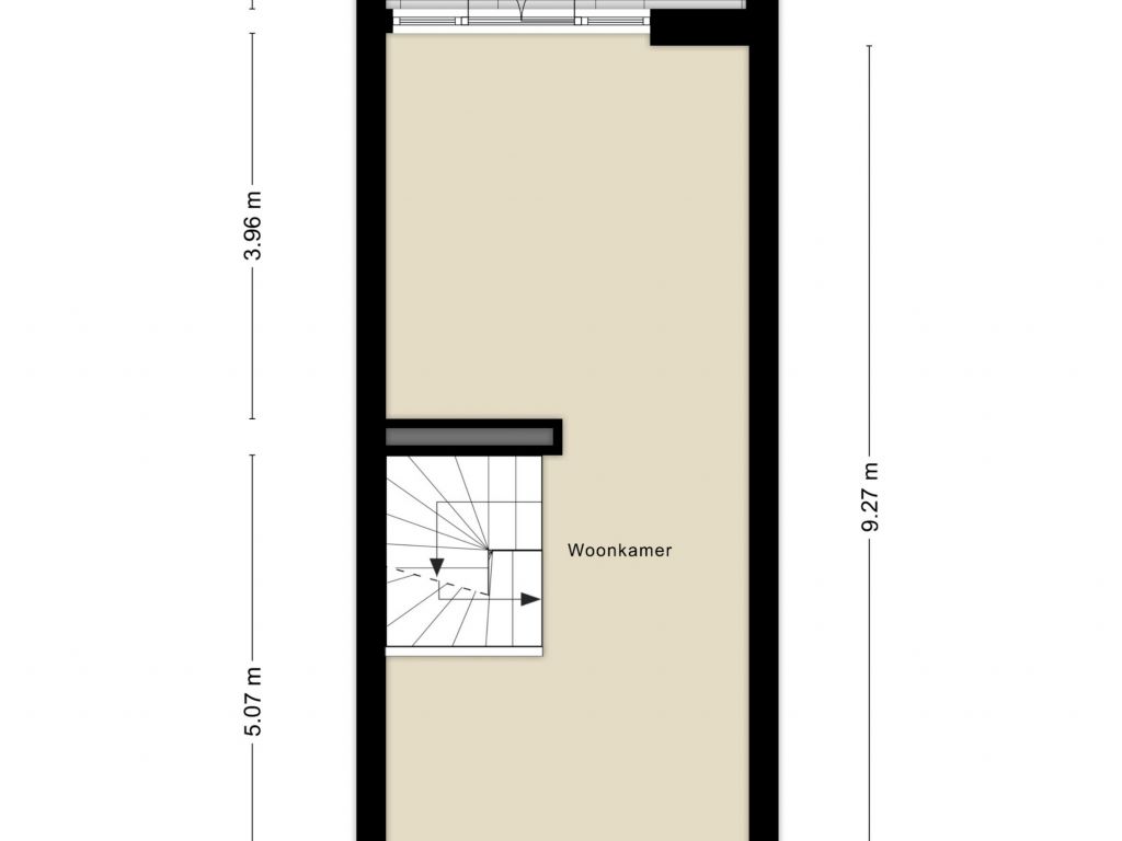
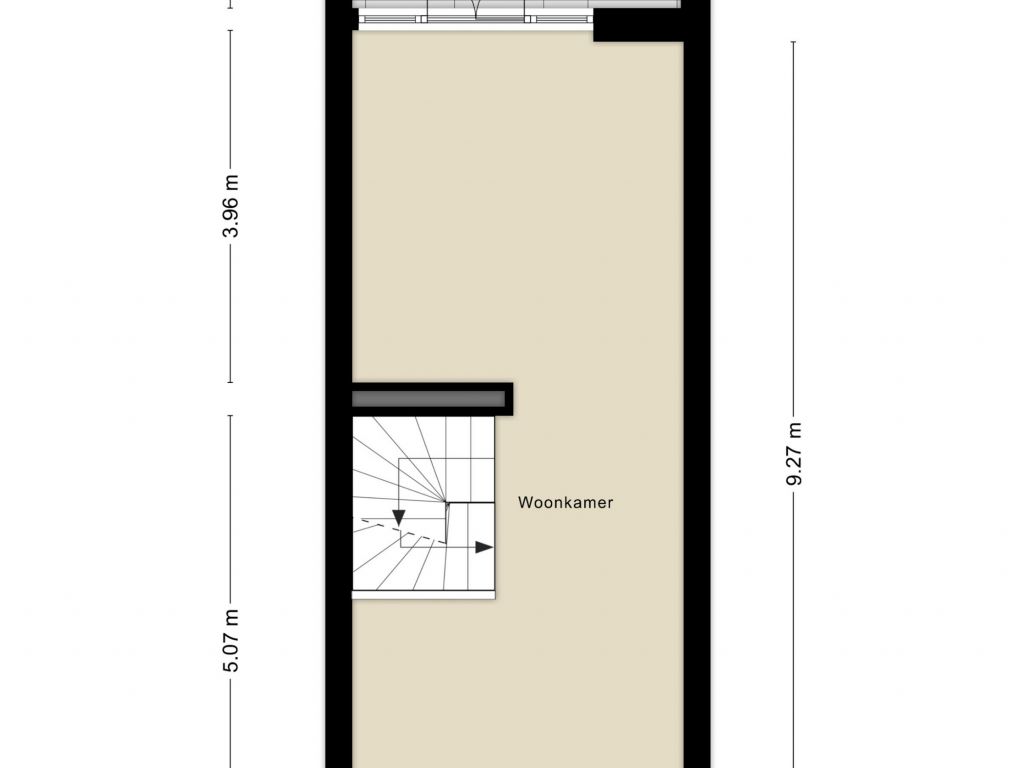
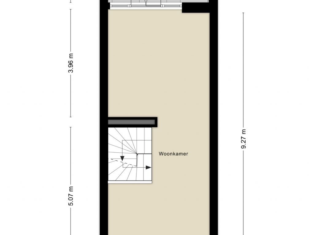
1e verdieping:
Middels de trap bereik je de ruime woonkamer met wederom hoge raampartijen van vloer tot plafond. Via de woonkamer is het ruim balkon (ca. 9 m2) bereikbaar, welke heerlijk op het zuiden is gesitueerd.

2e verdieping:
Overloop met aansluitend 2 fijne slaapkamers welke beide beschikken over een Frans balkon. De badkamer is voorzien van een douche, wastafel en een 2e toilet. Op de overloop bevindt zich een praktische bergkast waar zich de standplaats van de CV-ketel bevindt.

Dit speels ingedeelde woonhuis is geheel voorzien van dubbele beglazing, is optimaal geïsoleerd en beschikt over een inpandige berging en een privé parkeerplaats voor de deur. Gesitueerd in een populair, vernieuwd stadsdeel van Den Bosch met veel voorzieningen op loopafstand. Het bruisende hart van ’s-Hertogenbosch, Centraal Station en ook het Paleiskwartier met restaurantjes, koffietentjes en een bioscoop zijn vanaf hier binnen een paar minuten bereikbaar. Tevens is er een buurtsupermarkt met veel verse producten en bevinden winkelcentrum Helftheuvelpassage, de uitvalswegen en prachtige natuurgebieden als de Gement en de Moerputten zich in de nabijheid.

Verkoopvoorwaarden vrije verkoop

De onderstaande voorwaarden zijn van toepassing:
1. U was zelf aanwezig tijdens de bezichtiging en doet zelf in eigen persoon een bieding (wij accepteren dus geen bieding namens andere (niet) natuurlijke personen).
2. U gaat zelf in de woning wonen.
3. U mag de koopwoning de eerste 12 maanden niet verkopen aan een derde partij (boete € 50.000,-)
4. De notariskeuze is voorbehouden aan verkoper: Huijbregts Notarissen te ’s-Hertogenbosch
5. Vrijwaring door koper(s) van verkoper van gebreken (zichtbaar en onzichtbaar) van de door een voormalig bewoner aangebrachte zaken.
6. Voorbehoud toestemming verkoop door bestuur stichting Zayaz.
7. Mogelijk asbesthoudende materialen in en aan de woning.
8. U bent bekend met het vestigen van bestaande en nieuw erfdienstbaarheden/bedingen/verplichtingen zoals gedogen bomen, parkeerplaats, brandgang, centraal antenne systeem, wijkverwarming, scheidingsmuren,
burenrecht en kabels en leidingen.

Kenmerken

Woonoppervlakte 113m²
Aantal kamers 4

Woning op kaart

Contactformulier

 

Heeft u interesse in deze woning, wilt u de woning bezichtigen of heeft u een vraag? Vul dan onderstaand formulier in. We nemen zo spoedig mogelijk contact op.

 

Alle velden met * zijn verplicht

Dit is uw makelaar


Boumij